QU'EST-CE QUE TU CHERCHES?
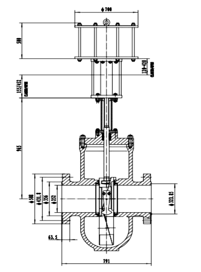
En réponse aux exigences spécifiques d'un client, GEKO Valves & Controls a conçu et fourni avec succès une solution sur mesure : la vanne de 10 pouces. Vannes de régulation à double porte pour les canalisations de transport de pétrole brut. Cette solution de vannes sur mesure a été largement reconnue et approuvée par notre précieux client.

Ingénierie de précision : GEKO a mis à profit sa vaste expertise pour concevoir le 10". Vannes de régulation à double porte avec précision, assurant un contrôle et des performances optimales dans le contexte du transport maritime de pétrole brut.
Conception à double porte : L’intégration d’une conception à double porte améliore la capacité de la vanne à réguler efficacement le débit de pétrole brut. Cette caractéristique offre un meilleur contrôle et une réactivité accrue face aux fluctuations du processus de transport.
Sélection des matériaux : L'engagement de GEKO envers la qualité se reflète dans la sélection rigoureuse des matériaux, garantissant durabilité et fiabilité dans l'environnement difficile du transport maritime de pétrole brut.
Le 10" personnalisé Vannes de régulation à double porte Les vannes ont fait l'objet de tests et d'évaluations rigoureux, et le client s'est déclaré pleinement satisfait de la solution. Elles ont démontré des performances exceptionnelles en matière de régulation du débit de pétrole brut dans l'oléoduc.
Flux de pétrole brut optimisé : La solution sur mesure garantit l'optimisation du processus d'expédition de pétrole brut du client, grâce à un contrôle précis du flux de pétrole brut, contribuant ainsi à l'efficacité opérationnelle.
Performances fiables : L'engagement de GEKO envers l'ingénierie de précision et les matériaux de haute qualité se traduit par des performances fiables et constantes des vannes, minimisant ainsi les temps d'arrêt et les besoins de maintenance.
Contrôle amélioré : La conception à double porte des vannes offre au client des capacités de contrôle accrues, permettant une meilleure gestion du processus d’expédition du pétrole brut.
Vannes et commandes GEKO La réussite de la mise en œuvre d'une solution personnalisée pour les vannes de régulation à double porte de 10 pouces témoigne de notre engagement à satisfaire, voire à dépasser, les attentes de nos clients. L'approbation de ce dernier confirme l'efficacité de notre approche sur mesure et positionne GEKO comme un partenaire fiable pour les solutions de vannes spécialisées dans un environnement exigeant. Secteur du transport maritime de pétrole brut. Contactez-nous : info@geko-union.com